+9
Fontaine-lès-Dijon (21121)

Terrain 7 pièce(s) 4 chambre(s) 205 m²

1
2
551 m²
245 000 €
Réf 4396-1

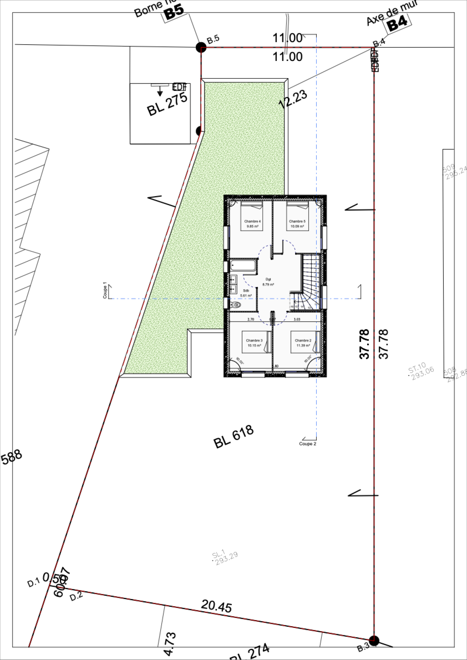
FONTAINE-LES-DIJON : Terrain de 571m² viabilisé avec permis de construire d'architecte de Lionel Lance en cours de dépot : pour une maison de 135m²(selon plan ci annéxé) qui comprendrait : une entrée , salon- séjour avec cuisine ouverte de 42m² , un celier ,une suite parentale avec salle de bains ,dressing et accés de plain pied sur terrasse et jardin piscinable, à l'étage : une mezanine dessert 4 chambres une salle de bains ,2 places de parkings couverte et une annexe completeraient ce bien.Dossier d'architecte et de viabilisation complet à l'agence , n'hesitez pas a contacter Mr Damidot au : 06.08.85.71.81 pour plus d'informations.


Les informations sur les risques auxquels ce bien est exposé sont disponibles sur le site Géorisques

Bilan énergétique

Diagnostics énergetiques
A propos de ce bien Caractéristiques de ce bien
  • Surface 205 m²
  • carrez 136 m²
  • terrain 551 m²
  • séjour 40 m²
  • 4 chambre(s)
  • 1 salle(s) de bain
  • 2 salle(s) d'eau
  • cuisine séparée
  • Chauffage individuel : radiateur (gaz)
  • 2 garage(s)
  • exposition Sud
  • 3 niveau(x)
  • vue sur vieux fontaine
  • terrasse
  • quartier Vieux fontaine

Composition

Composition de ce bien

Rez-de-chaussée

  • salon/sejour 40 m²

Financier

Informations financières
Prix de vente 245 000 € Les honoraires d'agence seront intégralement à la charge du vendeur
Taxe foncière annuelle 2 000 €

Autour du bien

Découvrez le quartier

Simulation

Calcul des mensualités
35000000
Altior Immobilier Agence